Piso en venta en Benisanó
- 84 m2
- 3
- 2
- IMA-5134
- Imprimir (PDF)
Solicitar información
¿Le interesa este inmueble? Por favor, rellene el siguiente formulario y nos pondremos en contacto con usted lo antes posible.
Descripción
Descubre tu nuevo hogar en Benissanó, un encantador piso que IMA Inmobiliaria ofrece en exclusiva, ideal para quienes buscan comodidad y funcionalidad.
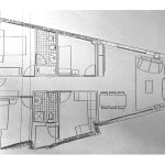
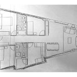
Se trata de una vivienda totalmente exterior, luminosa y con muy buena orientación. Cuenta con un total de 84 m2 construidos, de los que 71 m2 están destinados a la vivienda, muy bien aprovechados y una distribución práctica y equilibrada.
Dispone de un amplio y luminoso salón comedor, junto a una cocina tipo office con lavadero, pensada para el uso diario.
La zona de descanso se compone de 3 habitaciones y 2 baños completos, uno de ellos integrado en la suite principal y equipado con bañera.
La vivienda ofrece un alto nivel de confort gracias a sus ventanas de doble acristalamiento aislante, persianas, calefacción por radiadores eléctricos y tomas de televisión en todas las habitaciones y en la cocina.
Los acabados incluyen suelos de gres porcelánico, paredes lisas y puerta de seguridad, todo en buen estado de conservación.
Ubicada en una zona excelente, una población tranquila, con fácil acceso a la salida de la pista de Ademuz y próxima a colegios, áreas deportivas y supermercados. La finca dispone de ascensor y acceso a fibra óptica en la zona.
Una vivienda lista para convertirse en tu nuevo comienzo.
Este anuncio es meramente informativo y no tiene valor contractual, pudiendo contener errores.
El precio no incluye gastos de compraventa, impuestos ni honorarios.
Detalles
- Superficie construida: 84 m2
- Habitaciones: 3
- Baños: 2
Características
- Armarios empotrados
- Ascensor
- Calefacción
- Doble cristal
- Internet fibra óptica
- Lavadero
- Puertas de seguridad
- Videoportero






















